Sebastian

229000 kr

Pris (med MVA): 229000 kr

Beskrivelse

caret-down
  • Skreddersydd og tilpasninger mulig.
  • Tykkere vegg (90 mm, 135 mm, etc.) mulig.
  • Vegg,tak og gulv isolasjonssett tilgjengelig mot pristillegg.

Inkludert i pakken

caret-down
  • Vegg 68mm;
  • 19 mm not og fjær tak,kantbord;
  • 28 mm not og fjær gulvbord,gulvlister;
  • Isolerglass vinduer og dører i treramme ;
  • Toveis åpningsbare vinduer med utvendig vinduskarm i metall;
  • Impregnerte grunnbjelker;
  • Vinduer og dører med komplett beslagg sett;
  • Monteringsanvisning.

Tekniske opplysninger

caret-down
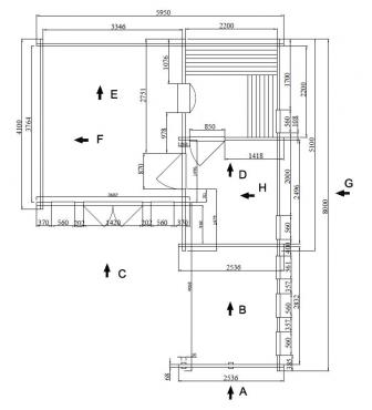
Veggtykkelse (mm):
68mm
Bruksareal (m²):
22.92
Antall etasjer:
1
Takformen:
Saltak
Antall rom:
Tre
Innvendige mål (m):
5.614 x 4.764
Utvendige mål (m):
5.75 x 7.80
Bygningsareal(m²):
31.53
Laveste vegghøyde (m):
2.30
Mønehøyde (m):
3.30
Antall vinduer (stk.):
5 / 2
Vindusstørrelsen (m):
0.56 x 1.95 / 0.60 x 0.61
Ytterdør størrelse (m):
1.42 x 2.08
Innerdør størrelse (m):
0.87 x 1.95
Få flere opplysninger
Ved å sende denne meldingen vil du motta et tilbud på produktet: Sebastian

Sebastian

229000 kr