Varese

115500 kr

Pris (med MVA): 115500 kr

Beskrivelse

caret-down
  • Skreddersydd og tilpasninger mulig.

Inkludert i pakken

caret-down
  • Vegg 44 mm;
  • Impregnerte grunnbjelker;
  • Taksperrer 45 x 140 mm;
  • Tak 19 mm not og fjær, kantbord;
  • Limtre stolper 135x135 mm;
  • Toveis åpningsbare vinduer med utvendig vinduskarm i metall;
  • Redskapsbod/bod medfølger;
  • Monteringsanvisning.

Tekniske opplysninger

caret-down
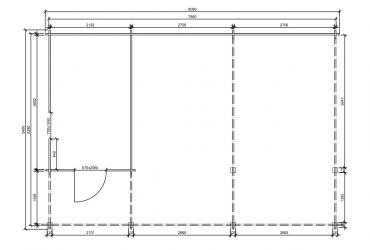
Veggtykkelse (mm):
44mm
Bygningsarea(m²)l:
41.61
Takformen:
Saltak
Innvendige mål (m):
3.692 x 2.192
Utvendige mål (m):
7.88 x 5.28
Bygningsareal(m²):
41.61
Laveste vegghøyde (m):
2.4
Mønehøyde (m):
3.4
Antall vinduer (stk.):
1
Vindusstørrelsen (m):
0.72 x 1.04
Ytterdør størrelse (m):
0.87 x 2.08
Innkjørsel bredde (m):
3.65
Innkjørsel høyde (m):
2.16

Ytterligere filer

caret-down
Få flere opplysninger
Ved å sende denne meldingen vil du motta et tilbud på produktet: Varese

Varese

115500 kr