Jurkalne 57

443000 kr

Pris (med MVA): 443000 kr

Beskrivelse

caret-down
  • Skreddersydd og tilpasninger mulig.
  • Tykkere vegg (90 mm, 135 mm, etc.) mulig.
  • Vegg,tak og gulv isolasjonssett tilgjengelig mot pristillegg.

Inkludert i pakken

caret-down
  • Vegg 68mm;
  • 19 mm not og fjær tak,kantbord;
  • 28 mm not og fjær gulvbord,gulvlister;
  • Isolerglass vinduer og dører i treramme ;
  • Toveis åpningsbare vinduer med utvendig vinduskarm i metall;
  • Ytterdøra og innerdører med glass eller uten;
  • Impregnerte grunnbjelker;
  • Vinduer og dører med komplett beslagg sett;
  • Monteringsanvisning.

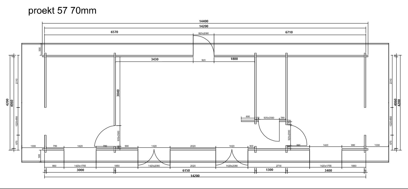
Tekniske opplysninger

caret-down
Veggtykkelse (mm):
68mm
Bruksareal (m²):
57
Antall etasjer:
1
Takformen:
Saltak
Antall rom:
Tre
Innvendige mål (m):
14.06 x 4.06
Utvendige mål (m):
14.20 x 4.20
Bygningsareal(m²):
59.64
Takareal (m²):
97.24
Tak overheng foran (m):
0.50
Laveste vegghøyde (m):
2.60
Mønehøyde (m):
3.81
Antall vinduer (stk.):
5
Vindusstørrelsen (m):
1.42 x 1.75 / 1.45 x 2.10 / 1.22 x 0.65
Ytterdør størrelse (m):
1.42 x 2.08
Innerdør størrelse (m):
0.92 x 2.08
Ytterligere muligheter
Montering
Mulig å bestille montering, samt utførelse av annet tilleggsarbeid i henhold til avtale (fundament, isolering, maling mm.)
Individuelle prosjekter
Vi produserer også skreddersydde prosjekter etter deres skisser, tegninger, ideer!
Få flere opplysninger
Ved å sende denne meldingen vil du motta et tilbud på produktet: Jurkalne 57

Jurkalne 57

443000 kr