Nice +

285000 kr

Pris (med MVA): 285000 kr

Beskrivelse

caret-down
  • Skreddersydd og tilpasninger mulig.
  • Tykkere vegg ( 90 mm, 135 mm, etc.) mulig.
  • Vegg,tak og gulv isolasjonssett tilgjengelig mot pristillegg.

Inkludert i pakken

caret-down
  • Vegg 68mm;
  • 19 mm not og fjær tak,kantbord;
  • 28 mm not og fjær gulvbord,gulvlister;
  • Isolerglass vinduer og dører i treramme ;
  • Toveis åpningsbare vinduer med utvendig vinduskarm i metall;
  • Impregnerte grunnbjelker;
  • Avtakbar stige;
  • 28 mm terrasse med rekkverk;
  • Vinduer og dører med komplett beslagg sett;
  • Monteringsanvisning.

Tekniske opplysninger

caret-down
Veggtykkelse (mm):
68mm
Bruksareal (m²):
41.57
Antall etasjer:
1.5
Takformen:
Saltak
Antall rom:
Mer enn tre
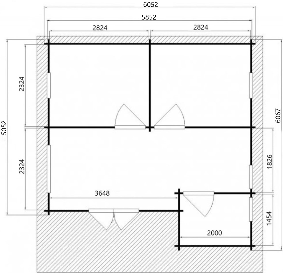
Innvendige mål (m):
5.716 x 5.731 + hems 5.716 x 2.324
Utvendige mål (m):
5.852 x 6.067
Bygningsareal(m²):
35.50
Laveste vegghøyde (m):
3.10
Mønehøyde (m):
4.10
Antall vinduer (stk.):
5
Vindusstørrelsen (m):
1.35 x 0.91 / 0.72 x 0.91
Ytterdør størrelse (m):
1.41 x 1.95
Innerdør størrelse (m):
0.78x 1.95
Ytterligere muligheter
Montering
Mulig å bestille montering, samt utførelse av annet tilleggsarbeid i henhold til avtale (fundament, isolering, maling mm.)
Individuelle prosjekter
Vi produserer også skreddersydde prosjekter etter deres skisser, tegninger, ideer!
Få flere opplysninger
Ved å sende denne meldingen vil du motta et tilbud på produktet: Nice +

Nice +

285000 kr