Sidney mini

113000 kr

Pris (med MVA): 113000 kr

Beskrivelse

caret-down
  • Skreddersydd og tilpasninger mulig.
  • Tykkere vegg (68 mm, 90 mm, 135 mm, etc.) mulig.
  • Vegg,tak og gulv isolasjonssett tilgjengelig mot pristillegg.

Inkludert i pakken

caret-down
  • Vegg 44mm;
  • 19 mm not og fjær tak,kantbord;
  • 19 mm not og fjær gulvbord,gulvlister;
  • Isolerglass vinduer og dører i treramme ;
  • Toveis åpningsbare vinduer med utvendig vinduskarm i metall;
  • Impregnerte grunnbjelker;
  • 28 mm terrasse;
  • Vinduer og dører med komplett beslagg sett;
  • Monteringsanvisning.

Tekniske opplysninger

caret-down
Veggtykkelse (mm):
44mm
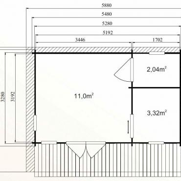
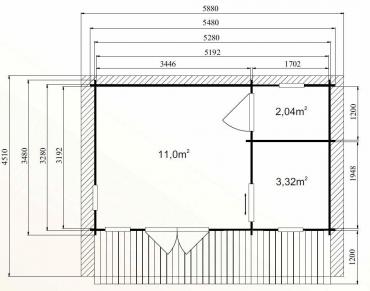
Bruksareal (m²):
16.36
Antall etasjer:
1
Takformen:
Pulttak
Antall rom:
Tre
Innvendige mål (m):
5.192 x 3.192
Utvendige mål (m):
5.28 x 3.28 + terrasse 1.20 x 5.192
Bygningsareal(m²):
23.55 ( med terrasse)
Tak overheng foran (m):
1.20
Laveste vegghøyde (m):
2.09 / 2.64
Antall vinduer (stk.):
3 / 1
Vindusstørrelsen (m):
0.56 x 1.95 / 0.60 x 0.61
Ytterdør størrelse (m):
1.41 x 1.95
Innerdør størrelse (m):
0.77 x 1.95
Ytterligere muligheter
Montering
Mulig å bestille montering, samt utførelse av annet tilleggsarbeid i henhold til avtale (fundament, isolering, maling mm.)
Individuelle prosjekter
Vi produserer også skreddersydde prosjekter etter deres skisser, tegninger, ideer!
Få flere opplysninger
Ved å sende denne meldingen vil du motta et tilbud på produktet: Sidney mini

Sidney mini

113000 kr