Majori 45

189000 kr

Pris (med MVA): 189000 kr

Beskrivelse

caret-down
  • Skreddersydd og tilpasninger mulig.

Inkludert i pakken

caret-down
  • Limtre konstruksjon (70 % sterkere enn heltre):
  • Vegg 44mmx130;
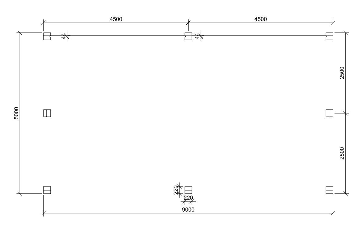
  • Stolper 220x220mm;
  • Bjelker 220x220mm;
  • Taksperrer 135x180mm;
  • Takbord 19x100 mm;
  • Kantbord 28x130 mm;
  • Monteringsanvisning;
  • Takpapp/takshingel og stolpesko ikke inkludert.

Tekniske opplysninger

caret-down
Veggtykkelse (mm):
220mm limtre ramme
Bygningsarea(m²)l:
45
Takformen:
Pulttak
Innvendige mål (m):
9.0 x 4.56
Utvendige mål (m):
5.0 x 9.0
Bygningsareal(m²):
45
Takareal (m²):
58.49
Tak overheng foran (m):
0.62
Laveste vegghøyde (m):
3.0
Mønehøyde (m):
3.30
Innkjørsel bredde (m):
5.27
Innkjørsel høyde (m):
2.20

Ytterligere filer

caret-down
Få flere opplysninger
Ved å sende denne meldingen vil du motta et tilbud på produktet: Majori 45

Majori 45

189000 kr